三鷹市下連雀4丁目の中古一戸建

1億6,500万円

東京都三鷹市下連雀4丁目

中央線「三鷹」駅徒歩10分

価格
1億6,500万円
間取り/建物面積
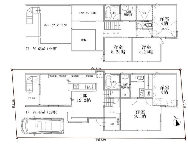
5LDK/139.09㎡
所在地
東京都三鷹市下連雀4丁目
築年
2010年4月(築15年)
駐車
交通

中央線三鷹」駅 徒歩10分

三鷹市下連雀4丁目の中古一戸建の基本情報

物件名
三鷹市下連雀4丁目の中古一戸建
価格
1億6,500万円
建物面積
139.09㎡
土地面積
44.21坪(146.18㎡)
築年月
2010年4月(築15年)
総戸数
-
所在地
東京都三鷹市下連雀4丁目
交通

中央線三鷹」駅 徒歩10分

三鷹市下連雀4丁目の中古一戸建の詳細情報

設備条件
設備(その他)
    -
駐車場/月額
有/0円
土地権利
所有権
国土法届出
不要
用途地域
第一種住居
取引態様
仲介
引渡し
相談
備考
三鷹市周辺にある物件をお求めの方は「三鷹市下連雀 戸建」はいかがでしょうか。周辺環境も充実している中古の戸建て物件です。好評の駅近物件となっており、駅より徒歩10分に立地しています。当社でなら三鷹市の素敵な不動産が見つかります。物件の詳細などが気になる方は、当社スタッフまでお気軽にお問い合わせください。

三鷹市下連雀4丁目の中古一戸建のコメント(おすすめポイント)

駅から徒歩10分の場所に位置する物件です。こちらは中古の戸建て物件です。不動産をお探しの方はいませんか。当社ではあなたの頼れる不動産探しのパートナーになれるよう、不動産情報を豊富に取り扱っております。ぜひご検討ください。

三鷹市下連雀4丁目の中古一戸建で募集中の物件

  1. 42.07坪 (139.09㎡)

    16,500万円(392.2万円/坪)

周辺施設

  • ファミリーマート 下連雀三丁目店の画像

    コンビニエンスストア

    ファミリーマート 下連雀三丁目店

    142m(2分)

  • 地産マルシェ三鷹店の画像

    スーパー

    地産マルシェ三鷹店

    366m(5分)

  • クリエイトSD(エス・ディー) 三鷹下連雀店の画像

    ドラッグストア

    クリエイトSD(エス・ディー) 三鷹下連雀店

    684m(9分)

  • 三鷹市立第四小学校の画像

    小学校

    三鷹市立第四小学校

    802m(11分)

三鷹市下連雀4丁目の中古一戸建

お気軽にお問い合わせください

LINEからお問い合わせ 無料お問い合わせ

株式会社アーキ不動産

042-595-7394

10:00~19:00

(休:水曜)