国分寺市南町2丁目の中古マンション

7,480万円

東京都国分寺市南町2丁目

中央線「国分寺」駅徒歩3分

価格
7,480万円
間取り/面積
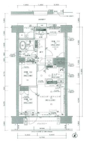
3LDK/64.52㎡
所在地
東京都国分寺市南町2丁目
築年
2012年1月(築14年)
駐車
空無
交通

中央線国分寺」駅 徒歩3分

国分寺市南町2丁目の中古マンションの基本情報

物件名
国分寺市南町2丁目の中古マンション
価格
7,480万円
築年月
2012年1月(築14年)
総戸数
-
所在地
東京都国分寺市南町2丁目
交通

中央線国分寺」駅 徒歩3分

国分寺市南町2丁目の中古マンションの詳細情報

設備条件
  • エレベーター
  • オートロック
設備(その他)
    -
駐車場/月額
空無/-
土地権利
所有権
国土法届出
不要
用途地域
商業
戸数
- / -
管理形態
管理会社に全部委託
管理員の勤務形態
日勤
管理会社
-
取引態様
仲介
引渡し
即時
備考
「リビオ国分寺ステーションアベニュー」のここがイチオシ。この物件は快適な室内環境が魅力の中古マンションとなっています。こちらの物件にはエレベーターが付いています。快適な地上17階建ての物件。不動産のご購入を検討しているが不動産の知識がなくて不安だと思う方でも、経験豊富な当社スタッフがしっかりとサポートするので安心してご依頼下さい。

国分寺市南町2丁目の中古マンションのコメント(おすすめポイント)

エレベーター付きの物件はもはやマストな条件となっています。駅から徒歩3分圏内にある駅近物件です。この物件は17階建てとなっており、見晴らしもいいです。多くの方に好評な、清潔感のある室内が魅力の中古マンションです。当社オススメの不動産情報をお求めになるなら、お電話やメールでのお問い合わせ、又は直接お尋ね下さい。当社がしっかりとサポート致します。

国分寺市南町2丁目の中古マンションで募集中の物件

  1. 3階

    19.51坪 (64.52㎡)

    7,480万円(383.3万円/坪)

周辺施設

  • NewDays(ニューデイズ) 国分寺店の画像

    コンビニエンスストア

    NewDays(ニューデイズ) 国分寺店

    350m(5分)

  • 西友 国分寺店の画像

    スーパー

    西友 国分寺店

    456m(6分)

  • セブンイレブン 国分寺本町2丁目店の画像

    コンビニエンスストア

    セブンイレブン 国分寺本町2丁目店

    502m(7分)

  • サンドラッグ 国分寺本町店の画像

    ドラッグストア

    サンドラッグ 国分寺本町店

    530m(7分)

  • 第七小学校の画像

    小学校

    第七小学校

    634m(8分)

  • 国分寺市立第二中学校の画像

    中学校

    国分寺市立第二中学校

    755m(10分)

よく見られている物件

  1. 多摩市鶴牧4丁目

    3LDK (85.09㎡)

    1,980万円

  2. 多摩市関戸4丁目

    3LDK (68.49㎡)

    2,399万円

  3. 小平市花小金井南町2丁目

    1DK (36.25㎡)

    1,480万円

  4. 多摩市関戸6丁目

    3LDK (64.00㎡)

    3,299万円

国分寺市南町2丁目の中古マンション

お気軽にお問い合わせください

LINEからお問い合わせ 無料お問い合わせ

株式会社アーキ不動産

042-595-7394

10:00~19:00

(休:水曜)