立川市錦町1丁目の中古マンション

2,699万円

東京都立川市錦町1丁目

中央線「立川」駅徒歩8分

価格
2,699万円
間取り/面積
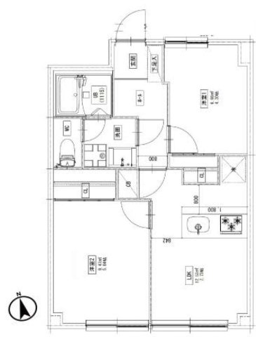
2LDK/44.50㎡
所在地
東京都立川市錦町1丁目
築年
1980年5月(築45年)
駐車
空無
交通

中央線立川」駅 徒歩8分

立川市錦町1丁目の中古マンションの基本情報

物件名
立川市錦町1丁目の中古マンション
価格
2,699万円
築年月
1980年5月(築45年)
総戸数
22戸
所在地
東京都立川市錦町1丁目
交通

中央線立川」駅 徒歩8分

立川市錦町1丁目の中古マンションの詳細情報

設備条件
  • エレベーター
設備(その他)
    -
駐車場/月額
空無/-
土地権利
所有権
国土法届出
不要
用途地域
-
戸数
22戸 / -
管理形態
管理会社に全部委託
管理員の勤務形態
巡回
管理会社
-
取引態様
仲介
引渡し
相談
備考
ローソン 錦町一丁目店まで徒歩3分と近場にコンビニがあるのもポイント。あると何かと便利な、エレベーターのある物件となっています。中古ながらも綺麗な室内と魅力的な住環境のマンションです。駅から徒歩8分の物件です。立川市の不動産情報をお求めなら、信頼と実績を誇る当社にお任せ下さい。経験豊富な当社スタッフがしっかりとサポート致します。

立川市錦町1丁目の中古マンションのコメント(おすすめポイント)

こだわりポイント満載のイーグル立川。ローソン 錦町一丁目店まで徒歩3分と近場にコンビニがあるのもポイント。中古ながらも綺麗な室内と魅力的な住環境のマンションです。こちらの物件はエレベーター付きです。立川市の不動産情報をお求めなら、信頼と実績を誇る当社にお任せ下さい。経験豊富な当社スタッフがしっかりとサポート致します。

立川市錦町1丁目の中古マンションで募集中の物件

  1. 2階

    13.46坪 (44.50㎡)

    2,699万円(200.6万円/坪)

周辺施設

  • ローソン 錦町一丁目店の画像

    コンビニエンスストア

    ローソン 錦町一丁目店

    223m(3分)

  • スギ薬局 立川錦町店の画像

    ドラッグストア

    スギ薬局 立川錦町店

    414m(6分)

  • 立川市立第三小学校の画像

    小学校

    立川市立第三小学校

    417m(6分)

  • 東急ストア 立川駅南口店の画像

    スーパー

    東急ストア 立川駅南口店

    661m(9分)

  • 立川第三中学校の画像

    中学校

    立川第三中学校

    1190m(15分)

立川市錦町1丁目の中古マンション

お気軽にお問い合わせください

LINEからお問い合わせ 無料お問い合わせ

株式会社アーキ不動産

042-595-7394

10:00~19:00

(休:水曜)