調布市飛田給3丁目の中古一戸建

11月20日 値下げ

4,480万円

東京都調布市飛田給3丁目

京王線「飛田給」駅徒歩11分

価格
4,480万円
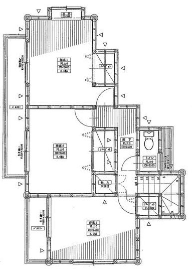
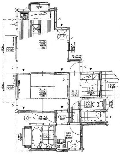
間取り
4LDK
土地面積
123.77㎡
所在地
東京都調布市飛田給3丁目
交通

京王線飛田給」駅 徒歩11分

建物面積
87.56㎡
築年月
2004年7月(築21年)

物件の特徴

  • バストイレ別

  • 室内洗濯機置場

  • 独立洗面台

  • 浴室乾燥機

セールスポイント

ぜひ一度見ていただきたい、「調布市飛田給3丁目 戸建て」です。通学区域の小学校は調布市立飛田給小学校徒歩6分。追い焚き機能付きで水道代の節約につながります。一戸建て購入は妥協したくないものですよね。調布市の京王線飛田給付近で住まい探しをするのであれば、知識豊富な当社スタッフまでご連絡ください。

ポイント

バス トイレ別 3口以上コンロ トイレ2ヶ所 温水洗浄便座 システムキッチン

担当者のコメント

「調布市飛田給3丁目 戸建て」のここがイチオシ。調布市立飛田給小学校が通学範囲内、学校まで徒歩6分。建物面積87.56平米の物件は住み心地が良いと評判です。追い焚き機能付の浴室です。不動産について何かお困りのことなどがございましたら、京王線飛田給周辺の地域に強い当社スタッフまでお問い合わせください。

基本情報

販売戸数
-
総戸数
-
間取り / 詳細
4LDK
和室 6.0帖 1室/LDK 10.0帖 1室/洋室 6.0帖 1室/洋室 6.0帖 1室/0.0帖/0.0帖/0.0帖/0.0帖/0.0帖/0.0帖
向き
-
建物面積(坪数)
87.56㎡(26.48坪)
土地面積(坪数)
123.77㎡(37.44坪)
建ぺい率 /
容積率
40%/80%
築年月
2004年7月(築21年)
駐車場 / 月額
有 / 0円
土地権利
所有権
土地
(敷金 / 保証金)
- / -
建物構造
木造 / 2階建
傾斜地部分面積
-
路地状敷地
-
私道負担面積
0.00㎡
セットバック
0.00㎡
高圧線下面積
0.00㎡
施工会社
-
用途地域
第一種低層住居専用
地目 / 地勢
宅地 / 平坦
接道状況
一方(北 公道 5.0m 間口 20.0m)
国土法届出要否
不要
都市計画
市街化区域
総区画数 /
販売区画数
-/-
現況
空家
その他
法令上の制限
-
取引態様
仲介
引渡し
相談
取引条件の
有効期限
2026年04月24日

設備条件

設備条件
  • 室内洗濯機置場 / フローリング / バルコニー / 都市ガス / 公営水道 / 公共下水 / ガスコンロ / コンロ2口以上 / システムキッチン / コンロ3口 / バス・トイレ別 / 追焚機能浴室 / 浴室乾燥機 / 温水洗浄便座 / トイレ2ヶ所 / 独立洗面台
設備(その他)
    -

その他

物件番号
98473052
管理コード
5103204
建築確認番号
-
情報更新日
2026年04月10日
次回更新予定日
2026年04月24日
取扱会社
  • 株式会社アーキ不動産
  • 東京都立川市曙町1丁目12-17 原島ビル1F
  • TEL:042-595-7394
  • 東京都知事 (1) 第106293号
備考
調布市エリアでの住まいなら、住み心地も快適な「調布市飛田給3丁目 戸建て」はいかがでしょうか。通学区域の小学校は調布市立飛田給小学校徒歩6分。風呂の湯が冷めた時も追焚機能浴室があるので便利です。当社スタッフが調布市での住まい探しを全力でサポート致しますので、不動産情報をお求めならお気軽にお問い合わせください。

周辺施設

  • 調布市立飛田給小学校の画像

    小学校

    調布市立飛田給小学校

    414m(6分)

  • 調布市立第五中学校の画像

    中学校

    調布市立第五中学校

    588m(8分)

  • まいばすけっと 調布多摩川1丁目店の画像

    スーパー

    まいばすけっと 調布多摩川1丁目店

    745m(10分)

  • セブンイレブン 府中押立町4丁目店の画像

    コンビニエンスストア

    セブンイレブン 府中押立町4丁目店

    768m(10分)

  • DCM調布店の画像

    ホームセンター

    DCM調布店

    917m(12分)

支払いシミュレーション

月々の支払額

※実際の金額と異なる場合があります。

購入希望物件価格
万円
頭金
万円
金利
%
返済額(ボーナス1回分)
万円
返済期間

※ボーナスは自動で年2回分で計算されます。

よく見られている物件

  1. 昭島市東町5丁目の中古一戸建

    昭島市東町5丁目

    1DK (57.82㎡)

    980万円

  2. 八王子市宇津木町 戸建て

    八王子市宇津木町

    3LDK (94.26㎡)

    1,480万円

  3. あきる野市引田の中古一戸建

    あきる野市引田

    3LDK (84.83㎡)

    1,380万円

  4. 多摩市関戸5丁目の中古一戸建

    多摩市関戸5丁目

    3K (98.62㎡)

    1,380万円

調布市飛田給3丁目の中古一戸建

調布市飛田給3丁目の中古一戸建

4,480万円

-

4LDK(87.56㎡)

お気軽にお問い合わせください

LINEからお問い合わせ 無料お問い合わせ

株式会社アーキ不動産

042-595-7394

10:00~19:00

(休:水曜)