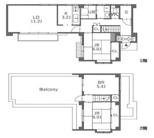
おすすめの駅 京王永山駅 / 三鷹駅 / 京王多摩センター駅 / ひばりヶ丘駅 / 久米川駅 / 武蔵砂川駅 / 武蔵小金井駅 / 立川駅 / 河辺駅 / 府中駅 1件 新着順 安い順 高い順 おすすめ順 住所ごと順 建物面積の広い順 土地面積の広い順 築年数が新しい順 中古マンション 日野市平山 日野市平山3丁目の中古マンション 2,280万円 2月12日 値下げ 1階 / 84.00㎡ / 3LDK /築47年 /2階建 京王線「平山城址公園」駅 徒歩7分 リフォーム済バス・トイレ別室内洗濯機置場フローリング都市ガスシステムキッチン こだわりポイント満載の京王平山センターハイツ。ファミリー向けのポイント、日野市立平山小学校が徒歩9分のところにあります。2,280万円の物件で、新しい生活を始めましょう。自然なイメージを感じることの出来るフローリングとなっています。不動産のことで当社にご要望やご不明な点などがあれば、メール若しくはお電話でご連絡ください。経験豊富なプロのスタッフがしっかりとお応え致します。 平山城址公園の掲載物件の価格相場 1R ~ 1K 1DK ~ 1LDK 2K ~ 2LDK 3K ~ 3LDK 4K ~ 4LDK以上 価格相場 - - - 2280万円 - 空室件数 - - - 1室 - 1
こだわりポイント満載の京王平山センターハイツ。ファミリー向けのポイント、日野市立平山小学校が徒歩9分のところにあります。2,280万円の物件で、新しい生活を始めましょう。自然なイメージを感じることの出来るフローリングとなっています。不動産のことで当社にご要望やご不明な点などがあれば、メール若しくはお電話でご連絡ください。経験豊富なプロのスタッフがしっかりとお応え致します。