44件
-
NEW
2,980万円
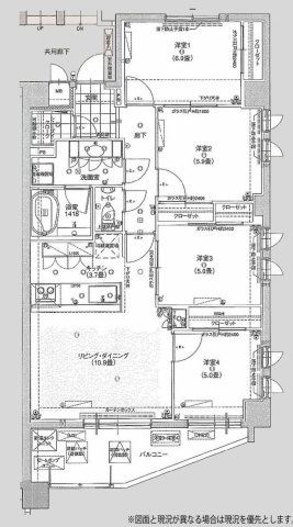
1階 / 78.91㎡ / 4LDK /築51年 /7階建
- バス・トイレ別
- バルコニー
- フローリング
- 都市ガス
- システムキッチン
- 温水洗浄便座
通学区域の小学校は新町小学校徒歩15分。2駅利用できる場所にあるので利便性が高いです。皆で仲良く生活できる4LDKの物件情報はこちらです。追焚機能のある浴室のでお湯が冷めてしまっても安心ですね。新居を構えるなら、こだわりの条件があるはずです。当社は、お客様のご要望にお応えしますので、こだわりやご希望などお気軽にお問い合わせ下さい。
-
ペット可
NEW
4,790万円
7階 / 75.01㎡ / 3LDK /築20年 /13階建
- ペット飼育可
- ペット相談
- エレベーター
- リフォーム済
- ウォークインクロゼット
- バス・トイレ別
こだわりで選びたい方におすすめ。府中市エリアで住まいをお探しなら「ラヴィラ府中多摩川」。ローソン 府中住吉町五丁目店まで徒歩6分と近場にコンビニがあるのもポイント。システムキッチン付きの物件です。共有部分も清潔感があり、綺麗な中古マンションです。京王線中河原周辺にある不動産の購入をご検討してはいかがでしょうか。交通の利便性が高いため、快適な暮らしができます。ぜひお気軽にご連絡下さい。
-
NEW
2,180万円
2階 / 61.25㎡ / 3LDK /築37年 /4階建
- ペット相談
- バス・トイレ別
- バルコニー
- フローリング
- 都市ガス
- システムキッチン
バルコニーが付いています。61.25以上ある広いお部屋ですので、ぜひご検討ください。こちらの住宅の向きは南東向きです。お探しの方はどうぞ。駅から徒歩8分圏内に立地しています。当社はお客様の住まい探しをお手伝いします。こだわりやご要望などがあれば、メール又はお電話にてご連絡ください。また、ご質問やご不明な点などもお受けいたします。
-
NEW
1,780万円
2階 / 61.24㎡ / 3LDK /築37年 /4階建
- ペット相談
- バス・トイレ別
- 室内洗濯機置場
- 都市ガス
- システムキッチン
- 温水洗浄便座
こだわりで選びたい方におすすめ。日野市エリアで住まいをお探しなら「ライオンズマンション高幡不動第二」。日野市立七生緑小学校が徒歩16分のところにあり、お子様の通学も便利です。駅から徒歩8分の場所に位置する物件です。部屋の向きも大切な要素のひとつ。こちらの物件は南向きです。当社はお客様の住まい探しをお手伝いします。こだわりやご要望などがあれば、メール又はお電話にてご連絡ください。また、ご質問やご不明な点などもお受けいたします。
-
NEW
2,380万円
10月21日 値下げ
4階 / 54.17㎡ / 2LDK /築40年 /5階建
- リフォーム済
- バス・トイレ別
- バルコニー
- フローリング
- 都市ガス
- システムキッチン
京王線武蔵野台駅周辺への引っ越しをお考えなら「GSハイム武蔵野台」。バルコニーをご活用いただけます。バルコニーの広さは2.8平米です。販売価格が3000万円以内に抑えられています。不動産に関することでお悩みを抱えているのであれば、地域に詳しい当社スタッフが住まい探しをサポート致します。こだわりやご要望などがあれば、お気軽にお問い合わせ下さい。
-
NEW
3,180万円
3階 / 66.08㎡ / 3LDK /築44年 /12階建
- エレベーター
- リフォーム済
- バス・トイレ別
- 室内洗濯機置場
- フローリング
- 都市ガス
歩いて185mの場所に、ina21 調布染地店があります。3,180万円で、住み心地も良くおすすめの物件です。バルコニーの広さは7.17平米です。追い焚き機能付きで水道代の節約につながります。お引越しをするなら、生活に欠かせない施設が揃っている調布市で新たな住まいをお求めください。当社スタッフが新生活を快適にスタートできるよう、しっかりとサポート致します。
-
NEW
1,197万円
4階 / 73.59㎡ / 2LDK /築47年 /5階建
- リフォーム済
- バス・トイレ別
- 室内洗濯機置場
- フローリング
- 都市ガス
- システムキッチン
家族での生活にもぴったりな2LDKで落ち着いた生活。駅まで徒歩9分の物件です。システムキッチンは使いやすく汚れにくいのでご好評です。1,197万円の物件となっており、経済面でも魅力的です。住まい探しで大切なことは、その住まいがどれだけあなたの生活スタイルに適しているかです。こだわりやご要望などあれば、当社にお任せ下さい。
-
ペット可
NEW
4,490万円
3階 / 81.81㎡ / 3LDK /築17年 /8階建
- ペット飼育可
- ペット相談
- エレベーター
- リフォーム済
- ウォークインクロゼット
- バス・トイレ別
3口コンロが付いているので、3つの料理を同時に進められて時短につながります。月額14000円で駐車場を利用することができます。専有面積81.81平米なので、使い勝手がいいです。宅配ボックスを利用すれば、配達時間を気にすることなく外出や入浴などの私生活を送ることができます。不動産のことでお悩みなら、先ずは当社をお尋ねください。経験豊富なプロのスタッフがお客様のお悩みを解消いたします。ご連絡はメール又はお電話にてお待ちしております。
-
NEW
3,998万円
1階 / 70.20㎡ / 3LDK /築50年 /7階建
- エレベーター
- リフォーム済
- ウォークインクロゼット
- バス・トイレ別
- バルコニー
- フローリング
京王線国領駅周辺への引っ越しをお考えなら「マンション国領」。ファミリーマート スミダ国領店まで徒歩3分と近場にコンビニがあるのもポイント。中古ながらも綺麗な室内と魅力的な住環境のマンションです。3口コンロが付いているので、同時にたくさん料理できるので毎日忙しい人におすすめです。調布市にある京王線国領周辺で不動産情報をお求めの方は、当社にお任せ下さい。当社は、お客様が快適な生活が送れるよう、しっかりとサポート致します。
-
NEW
2,680万円
5階 / 57.83㎡ / 4DK /築55年 /7階建
- エレベーター
- バス・トイレ別
- 室内洗濯機置場
- 都市ガス
- ガスコンロ
- 追焚機能浴室
府中マンション:京王線府中駅にも近くて便利。価格は2,680万円です。新しいお住まいにいかがでしょうか。お料理好きには嬉しいダイニングキッチンのある間取りになっております。追焚機能設置の浴室なので翌日の入浴にも利便性が高いです。当社がお客様の不動産購入をしっかりとサポート致します。経験豊富な当社スタッフがご案内するので安心してお任せください。ご連絡はメール又はお電話にて、お待ちしております。
-
NEW
2,998万円
1階 / 64.62㎡ / 3LDK /築41年 /9階建
- ペット相談
- エレベーター
- リフォーム済
- バス・トイレ別
- 室内洗濯機置場
- フローリング
調布市エリアでの住まいなら、住み心地も快適な「ネオコーポ調布多摩川」はいかがでしょうか。ファミリー向けのポイント、調布市立飛田給小学校が徒歩11分のところにあります。浴室乾燥機のあるお風呂場は洗濯物を干すときにも便利です。中古マンションを購入して優雅な生活を送りましょう。不動産のことで当社にご要望やご不明な点などがあれば、メール若しくはお電話でご連絡ください。経験豊富なプロのスタッフがしっかりとお応え致します。
-
NEW
2,780万円
2階 / 88.31㎡ / 4LDK /築28年 /7階建
- エレベーター
- リフォーム済
- バス・トイレ別
- 室内洗濯機置場
- フローリング
- 都市ガス
追焚機能浴室は利便性が高いので、あって損はありません。利便性に優れ、家族で暮らすにもピッタリな4LDKです。価格は2,780万円です。新しいお住まいにいかがでしょうか。専有面積は88.31平米となっており広さも十分ではないでしょうか。京王線国領近郊なら、通勤や通学で困ることはありません。そんな利便性の高い暮らしをお求めなら、地域に詳しい当社にお任せ下さい。
-
NEW
4,480万円
5階 / 57.14㎡ / 3LDK /築41年 /7階建
- ペット相談
- エレベーター
- リフォーム済
- バス・トイレ別
- 室内洗濯機置場
- フローリング
歩いて28mの場所に、マルエツ 調布店があります。駅まで徒歩12分の場所に立地しています。日常生活で利用頻度の高い水回りだからこそ、使い勝手のいいシステムキッチンを選んでみませんか。冷めてしまったお風呂も簡単に温めなおすことができる追焚のある浴室です。当社がお客様の不動産購入をしっかりとサポート致します。経験豊富な当社スタッフがご案内するので安心してお任せください。ご連絡はメール又はお電話にて、お待ちしております。
-
ペット可
NEW
3,199万円
10月21日 値下げ
3階 / 70.80㎡ / 3LDK /築29年 /12階建
- ペット飼育可
- ペット相談
- エレベーター
- リフォーム済
- ウォークインクロゼット
- バス・トイレ別
「多摩南平パークスクエア 307」のここがイチオシ。家から253mのところに、薬や日用品を買うのに便利なサンドラッグ 南平店があります。専有面積70.8平米なので、使い勝手がいいです。ご紹介している物件は南西向きの物件です。部屋の向きを確認しましょう。交通の利便性に優れ、住み良い環境が整う京王線南平周辺は、住みたいエリアとして注目を集めています。ぜひ、不動産の購入をご検討してはいかがでしょうか。
-
NEW
1,299万円
10月21日 値下げ
2階 / 46.76㎡ / 2LDK /築55年 /5階建
- リフォーム済
- バス・トイレ別
- バルコニー
- フローリング
- システムキッチン
- 追焚機能浴室
日野市エリアでの住まいなら、住み心地も快適な「高幡台住宅18号棟」はいかがでしょうか。通学区域内の小学校は日野市立夢が丘小学校で徒歩13分です。洗面化粧台には、鏡や照明がついており身支度に利用できます。専有面積46.76平米なので、使い勝手がいいです。不動産に関することでお悩みを抱えているのであれば、地域に詳しい当社スタッフが住まい探しをサポート致します。こだわりやご要望などがあれば、お気軽にお問い合わせ下さい。
-
NEW
3,800万円
6階 / 56.28㎡ / 1LDK /築30年 /10階建
- ペット相談
- エレベーター
- バス・トイレ別
- 室内洗濯機置場
- フローリング
- 都市ガス
ぜひ一度見ていただきたい、「ステーションプラザ高幡不動」です。ついつい後回しになる掃除。フローリングなら楽々です。中古でありながら、室内もきれいな一押しのマンションとなっています。1LDKは、多くのお客様からのニーズがある間取りです。不動産のことで確認したいことがあるなら、メール又はお電話にてご連絡ください。当社は豊富な経験と知識を持っているので、丁寧にお答えします。
-
NEW
2,199万円
10月21日 値下げ
2階 / 50.90㎡ / 2LDK /築58年 /5階建
- リフォーム済
- バス・トイレ別
- 室内洗濯機置場
- フローリング
- 都市ガス
- システムキッチン
こだわりで選びたい方におすすめ。調布市エリアで住まいをお探しなら「多摩川住宅ハー1号棟」。薬や日用品を買うのに便利なサンドラッグ 調布染地店まで、254mです。追い焚き機能付の浴室です。快適な生活のために設計された中古マンションです。住まい探しで大切なことは、その住まいがどれだけあなたの生活スタイルに適しているかです。こだわりやご要望などあれば、当社にお任せ下さい。
-
NEW
1,680万円
3階 / 71.28㎡ / 3LDK /築54年 /6階建
- エレベーター
- リフォーム済
- バス・トイレ別
- バルコニー
- フローリング
- 都市ガス
こだわりポイント満載の佐佐木第二マンション。通学区域内の小学校は調布市立杉森小学校で徒歩8分です。フローリングは掃除が簡単です。広くて明るい12帖以上のLDKが魅力の物件はこちらとなっています。初めて訪れる街で暮らすのは不安がいっぱいですよね。そんな方は、地域特化型の当社にお問い合わせください。当社は確かな住宅情報をご提供しているので、安心してお任せいただけます。
-
NEW
1,880万円
10月7日 値下げ
5階 / 55.04㎡ / 2LDK /築56年 /5階建
- リフォーム済
- バス・トイレ別
- エアコン
- バルコニー
- フローリング
- システムキッチン
染地小学校まで徒歩4分。子どもを安心して学校に通わせたいファミリーにおすすめです。バルコニーをご活用いただけます。駐車スペースの月額請求額は、7000円です。水道代の節約につながる、追い焚き機能付きです。お客様の住まい探しを、経験豊富な当社スタッフがしっかりとサポート致します。ご要望やご不明な点などござましたら、メール又はお電話にてご連絡ください。
-
ペット可
NEW
5,480万円
8月26日 値下げ
4階 / 80.96㎡ / 3LDK /築22年 /15階建
- ペット飼育可
- ペット相談
- リフォーム済
- バス・トイレ別
- バルコニー
- フローリング
徒歩8分の距離に調布市立第五中学校があるのも魅力。地上15階建ての住み心地のいい物件です。3口コンロが付いているので、料理をたくさん作りたい時でも同時に進めることができて時短になります。お気に入りの中古マンションで満足度の高い生活をしましょう。京王線西調布周辺なら、通勤や通学においてあまり不便さを感じないでしょう。さらにご希望の条件があれば、当社にお聞かせ下さい。
-
NEW
3,390万円
2階 / 61.02㎡ / 2SLDK /築18年 /6階建
- ペット相談
- エレベーター
- リフォーム済
- バス・トイレ別
- 室内洗濯機置場
- 都市ガス
こちらの3,390万円の物件はいかがでしょうか。動線を意識したデザインのシステムキッチン付きで作業能率が上がります。間取りが2SLDKで毎日快適な生活ができる物件です。専有面積61.02平米なので、使い勝手がいいです。交通アクセスが良好な京王線東府中周辺なら、どこへ行くにも不便さを感じることはないでしょう。不動産をお探しなら、ぜひ当社にお任せ下さい。
-
NEW
4,498万円
1階 / 89.24㎡ / 4LDK /築42年 /4階建
- リフォーム済
- バス・トイレ別
- 室内洗濯機置場
- フローリング
- 都市ガス
- システムキッチン
徒歩13分で駅へのアクセスが可能な物件です。独立した洗面所の物件は、女性に非常に好評です。価格4,498万円のお住まいはこちらです。広々としたリビングに充実設備のキッチンを備えた4LDK。帰ってくるとほっとするようなお住まいが良いですよね。ご希望にマッチした不動産を購入して、さらに快適な毎日を送りましょう。
-
NEW
2,490万円
4階 / 57.34㎡ / 2LDK /築26年 /7階建
- エレベーター
- リフォーム済
- バス・トイレ別
- 室内洗濯機置場
- フローリング
- 都市ガス
専有面積57.34平米なので、使い勝手がいいです。南東向きのお部屋は朝陽が燦々と降り注ぎ、気持ちよく一日をスタートさせたい方におすすめです。販売価格が3000万円以内に抑えられています。浴室に追焚機能があるので入浴の時間帯を気にする事がありません。不動産のことで確認したいことがあるなら、メール又はお電話にてご連絡ください。当社は豊富な経験と知識を持っているので、丁寧にお答えします。
-
NEW
3,780万円
10階 / 71.26㎡ / 3LDK /築35年 /15階建
- エレベーター
- リフォーム済
- バス・トイレ別
- 室内洗濯機置場
- フローリング
- 都市ガス
新生活を失敗せず、スタートさせたいならこちらの「ライオンズプラザ聖蹟桜ヶ丘」はいかがでしょうか。薬や日用品を買うのに便利なクリエイトSD(エス・ディー) 聖蹟桜ケ丘店まで171mです。徒歩10分圏内に駅のある物件です。浴槽内の湯が冷めたときでも追焚機能付き浴室なので快適です。多摩市で不動産をお探しなら、地域に密着した当社にお任せ下さい。信頼と実績を誇る当社は、確かな情報をご提供致します。
-
NEW
5,280万円
4階 / 83.54㎡ / 4LDK /築17年 /6階建
- ペット相談
- エレベーター
- オール電化
- リフォーム済
- バス・トイレ別
- 室内洗濯機置場
開放感溢れる室内が魅力の、4LDKの物件はこちらです。IHクッキングヒーターでお料理をすることができます。3口コンロが付いているので、たくさん作る場合でも同時に料理を進められます。バルコニーの広さは9.57平米です。ご家族で有意義に暮らせるお住まいを、当社がご提案します。ご希望のエリアや条件など、どんなことでもお申し付けください。全力でサポート致します。
-
ペット可
6,490万円
23階 / 54.93㎡ / 2LDK /築3年 /33階建
- ペット飼育可
- ペット相談
- エレベーター
- ディスポーザー
- 床暖房
- バス・トイレ別
こだわりポイント満載のブリリアタワー聖蹟桜ヶ丘ブルーミングレジデンス。府中市立四谷小学校が徒歩25分のところにあり、お子様の通学も便利です。床暖房が付いているのでエアコンやファンヒーターによる空気や肌の乾燥を防げます。来訪者を確認できる、TVインターホン付きです。不動産のことで当社にご要望やご不明な点などがあれば、メール若しくはお電話でご連絡ください。経験豊富なプロのスタッフがしっかりとお応え致します。
-
ペット可
3,980万円
5階 / 73.17㎡ / 3LDK /築42年 /10階建
- ペット飼育可
- ペット相談
- エレベーター
- リフォーム済
- ウォークインクロゼット
- バス・トイレ別
新生活を失敗せず、スタートさせたいならこちらの「コープ府中武蔵野台3号棟」はいかがでしょうか。府中市立小柳小学校が通学範囲内、学校まで徒歩11分。専有面積は73.17平米となっており広さも十分ではないでしょうか。駅まで徒歩12分の場所に立地しています。人生で一度あるかないかの不動産購入で、失敗なんてしたら取り返しが付かないですよね。そんなことがないように、当社の経験豊富なスタッフがしっかりとサポート致します。
-
2,699万円
10月17日 値下げ
8階 / 68.49㎡ / 3LDK /築53年 /13階建
- リフォーム済
- ウォークインクロゼット
- バス・トイレ別
- 室内洗濯機置場
- フローリング
- 都市ガス
日常生活で利用頻度の高い水回りだからこそ、使い勝手のいいシステムキッチンを選んでみませんか。浴室乾燥機のあるお風呂場は洗濯物を干すときにも便利です。物件価格2,699万円の物件で、経済的な圧迫の無い生活を実現。身支度にもお使いいただける、独立洗面所がある物件です。不動産のことでお悩みなら、先ずは当社をお尋ねください。経験豊富なプロのスタッフがお客様のお悩みを解消いたします。ご連絡はメール又はお電話にてお待ちしております。
-
1,999万円
10月31日 値下げ
1階 / 60.48㎡ / 2LDK /築39年 /4階建
- リフォーム済
- バス・トイレ別
- バルコニー
- フローリング
- システムキッチン
- 温水洗浄便座
京王線高幡不動駅周辺への引っ越しをお考えなら「ライオンズマンション高幡不動」。薬や日用品を買うのに便利な薬マツモトキヨシ 高幡不動店まで399mです。駅から物件まで徒歩7分です。住んでいて心地の良い中古マンションで魅力的です。当社は確かな不動産情報をご提供しております。こだわりやご要望などがあれば、メール又はお電話にて当社にご連絡下さい。経験豊富なスタッフがしっかりとサポート致します。
多摩市エリアでの住まいなら、住み心地も快適な「聖蹟桜ヶ丘オリエント丹野マンション」はいかがでしょうか。多摩第一小学校まで徒歩6分。子どもを安心して学校に通わせたいファミリーにおすすめです。デザイン性のあるシステムキッチン付きなので、キッチンがお洒落なスペースになっています。価格は2,080万円です。新しいお住まいにいかがでしょうか。お引越しをするなら、生活に欠かせない施設が揃っている多摩市で新たな住まいをお求めください。当社スタッフが新生活を快適にスタートできるよう、しっかりとサポート致します。